物件情報
Information
On sale 販売中
屋根・外壁・外構工事済み(2025.12完了)
満室にて稼働中
年間2,988,000円(駐車場含む)、表面利回り7.03%
日比谷線乗り入れ路線で通勤便利
南向き2SLDKタイプ全4室
オーナーチェンジの収益物件です
越谷市大字恩間 売アパート KOSHIGAYASHI - ONMA 4,250万円(税込)
- 屋根・外壁・外構工事済、主要採光面:南向き、築年月:1991年5月、バイク置き場空無
- 2SLDKタイプ全4室
- 敷地面積:223.92㎡(公簿:234.00㎡)
- 現況:賃貸中
- 接道:北面4m公道
- 最寄り駅:東武鉄道伊勢崎線「大袋」駅徒歩9分
-
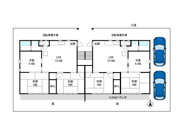
間取り
南向きの2SLDK。6帖和室2部屋と10.5帖LDK、洋室付きの使いやすい間取りです。駐車場2台分確保しています。
-
北面4m公道
北側4mの公道に接面しています。
-
入口
北側に配置したエントランスは、階段とともに建物中央に設計。動線をコンパクトにまとめ、2階建てで全4室を効率よく配置した構造です。
-
自転車置き場
エントランスの左右には自転車置き場を確保しています。
-
1階南側
1階南側には6帖二間の和室から出られる軒下スペースがあり、洗濯物も十分に干せます。2階は使い勝手の良いベランダ付きです。
-
2階踊り場
2階踊り場は開放的で見晴らし良好です。
-
商業施設
ジョイフーズ 越谷大袋店までは徒歩約9分(700m)のアクセスです。
-
病院
徒歩約5分の場所にある松尾医院は、通いやすい総合的な診療所です。(内科・小児科・循環器内科、皮膚科)
-
保育施設
越谷市立大袋保育所は徒歩約4分(約290m)の場所にあります。
-
小学校・中学校
越谷市立大袋小学校までは、徒歩約7分(約550m)、越谷市立大袋中学校までは、徒歩約15分(約1,200m)の距離です。
Details
詳細情報
◆ 越谷市大字恩間 売アパート
| 価格 | 4,250万円(税込) |
|---|---|
| 住所 | 埼玉県越谷市恩間355-3 |
| 土地面積 | 223.92㎡(公簿:234.00㎡) |
| 交通 | 東武鉄道伊勢崎線「大袋」駅徒歩9分 |
| 接道 | 北面4m公道 |
| 土地権利 | 所有権 |
| 都市計画 | 市街化調整区域 |
| 用途地域 | 一種中高 |
| 建ぺい率 | 60% |
|---|---|
| 容積率 | 200% |
| 構造 | 木造地上2階建 |
| 駐車場 | 募集中 |
| 現況 | 賃貸中 |
| 引渡予定 | 相談 |
| 設備 | プロパンガス・公営水道・公共下水 |
※図面と現況が異なる場合は現況優先とします。
まずはお気軽に
お問い合わせください
物件に関するお問い合わせや内見の予約など、気になることはなんでもご相談ください。
明正地所から直接買取りの場合は仲介手数料がかかりません。
ぜひ当ホームページからお問い合わせください。














